Maison Dufays
Jalon XX

Habitation unifamiliale

1969 - 1970 1969 - 1970
Réalisé

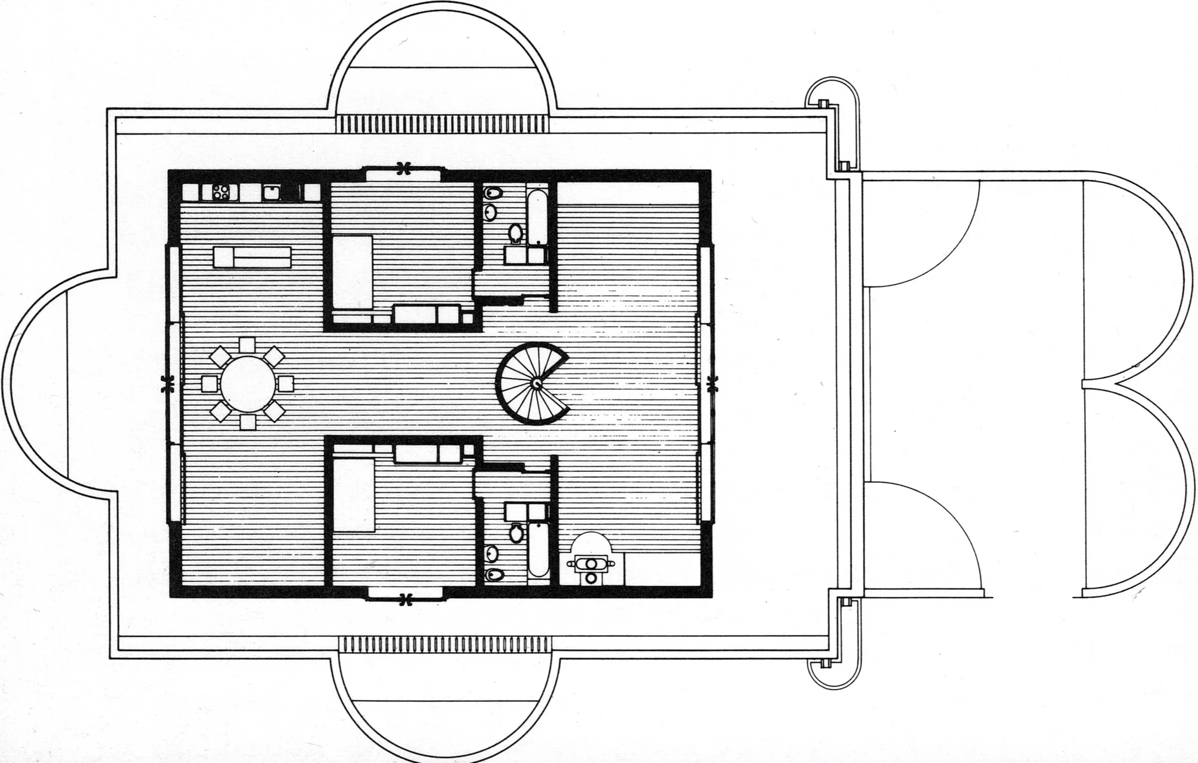
Conçue pour deux sœurs célibataires, cette maison de week-end implantée en recul par rapport au front de voirie se niche dans un paysage vallonné au sein duquel elle s'inscrit par une volumétrie principalement définie par la toiture qui la couvre. Bien qu'assez éloigné formellement des premières esquisses aux allures palladiennes sur plan carré, le projet conserve le développement d'un étage noble : espaces de séjour et chambres aux larges ouvertures reposent sur un soubassement renfermant les espaces de service. Le rez-de-chaussée, accessible par trois larges portes vitrées,est occupé par un garage qu'un escalier à vis – thématique récurrente dans l'œuvre de Vandenhove –mène au piano nobile. Spatialité unique qualifiée par son toit, le séjour est bordé latéralement par deux chambres et leurs salles de bains, répartissant l'espace restant en deux entités distinctes, mais néanmoins continues. La composition symétrique quasi basilicale voit ses axes renforcés par des ouvertures tantôt larges pour le séjour, tantôt plus modestes pour les chambres. Trois des côtés du quadrilatère sont prolongés d'une terrasse extérieure semi-circulaire protégée par les débordements de la toiture. Au sud, un espace extérieur privilégié protégé d'un auvent vitré offre une vue sur la vallée. Le niveau inférieur, élevé en maçonnerie de blocs de béton laissés apparents, prend la forme d'un socle supportant l'étage supérieur, sur lequel vient se poser à son tour la large toiture à deux versants de faible pente. Supportée par une charpente métallique composée de poutres cylindriques – système structurel récurrent dans l'œuvre de l'architecte, et notamment pour la verrière du CHU du Sart Tilman –, elle fonctionne en charnière et voit se creuser une faille en son faîte, dissociant ainsi les deux plans des versants.Réinterprétation moderne et contextuelle des villas classiques, cette maison permet à Charles Vandenhove de prolonger les expérimentations initiées notamment avec la maison Schoffeniels, sur les notions de fermeture et d'abri. 


 

Maxime Coq