Maison Leroy

Habitation unifamiliale Ateliers d'artistes

1962 - 1964 1962 - 1964
Réalisé

Diplômé de l'école d'architecture Saint-Luc Bruxelles en 1957, Claude Stampe estime être surtout redevable de son approche architecturale à l'architecte André Jacqmain – chez qui il a effectué son stage – et, dans une moindre mesure, au designer Jules Wabbes. 

En admirateur de Le Corbusier, il aime mettre en œuvre le Modulor, approche esthétique basée sur des proportions humaines idéales. S'il peut s'accommoder de budgets étriqués, Claude Stampe ne conçoit cependant pas la création sans affinité avec le commanditaire : comme ici, avec le sculpteur Leroy qui lui commande, en 1962, la construction de son atelier et, ensuite, sa maison familiale. 

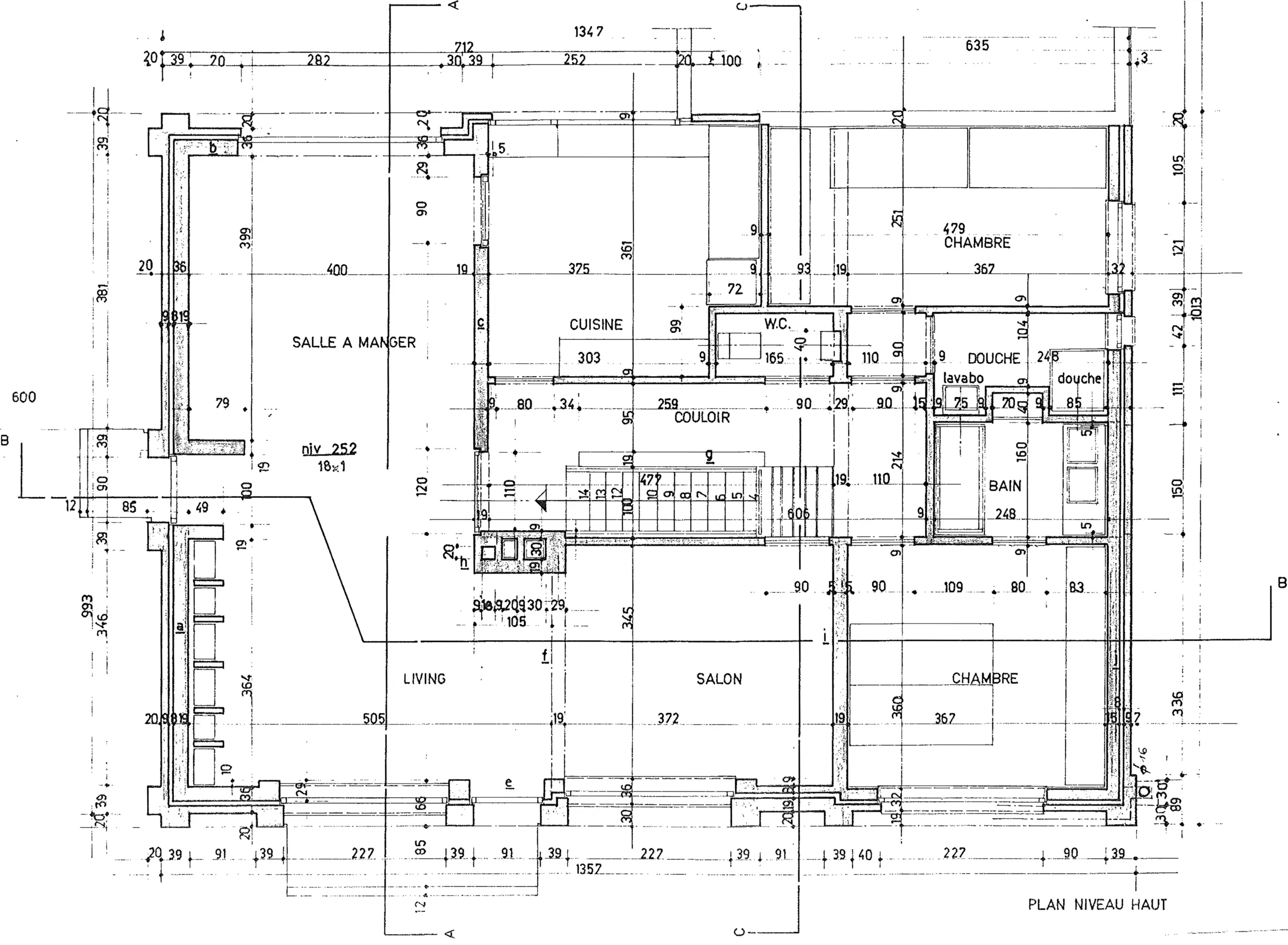
L'architecte tire parti d'un terrain ingrat, calé contre le talus du chemin de fer, en installant le bâtiment en recul de cette avenue pavée et arborée. Sous le bel-étage, le rez-de-chaussée est constitué à l'avant par des pilotis, comblés ultérieurement pour l'aménagement de chambres supplémentaires. Le béton armé est utilisé pour la dalle d'entre niveaux coulée sur place et pour les allèges, balustrades et rives de toiture où il est rythmé par de profondes rainures verticales et peint en brun foncé. 

La gamme de matériaux privilégie l'origine régionale, comme la brique de Ressaix peinte en blanc pour les parements et le grès de Bouffioulx pour les sols. Couverte de bitume, la charpente plate est constituée de solives et de contre-lattes. L'harmonie remarquable des pleins et des vides, à l'extérieur comme à l'intérieur, réfère au Modulor. 

L'aménagement intérieur est le fruit de la complicité entre l'architecte et l'artiste, comme celui du jardin, dont la pelouse est parsemée d'œuvres du sculpteur. 

Ce projet initiera d'autres commandes d'artistes. Claude Stampe bâtira l'habitation de l'artiste peintre Christiane Loriaux à Montigny-le-Tilleul et celle du céramiste et sculpteur Marc Feulien à Rèves.

Annique Vandael

Sources
Archives de Claude Stampe : Dossier Leroy.
Vandycke Yvon, Christian Leroy, sculpteur, 1977.