Villa Dufrasne

Habitation unifamiliale

1999 1999
Réalisé

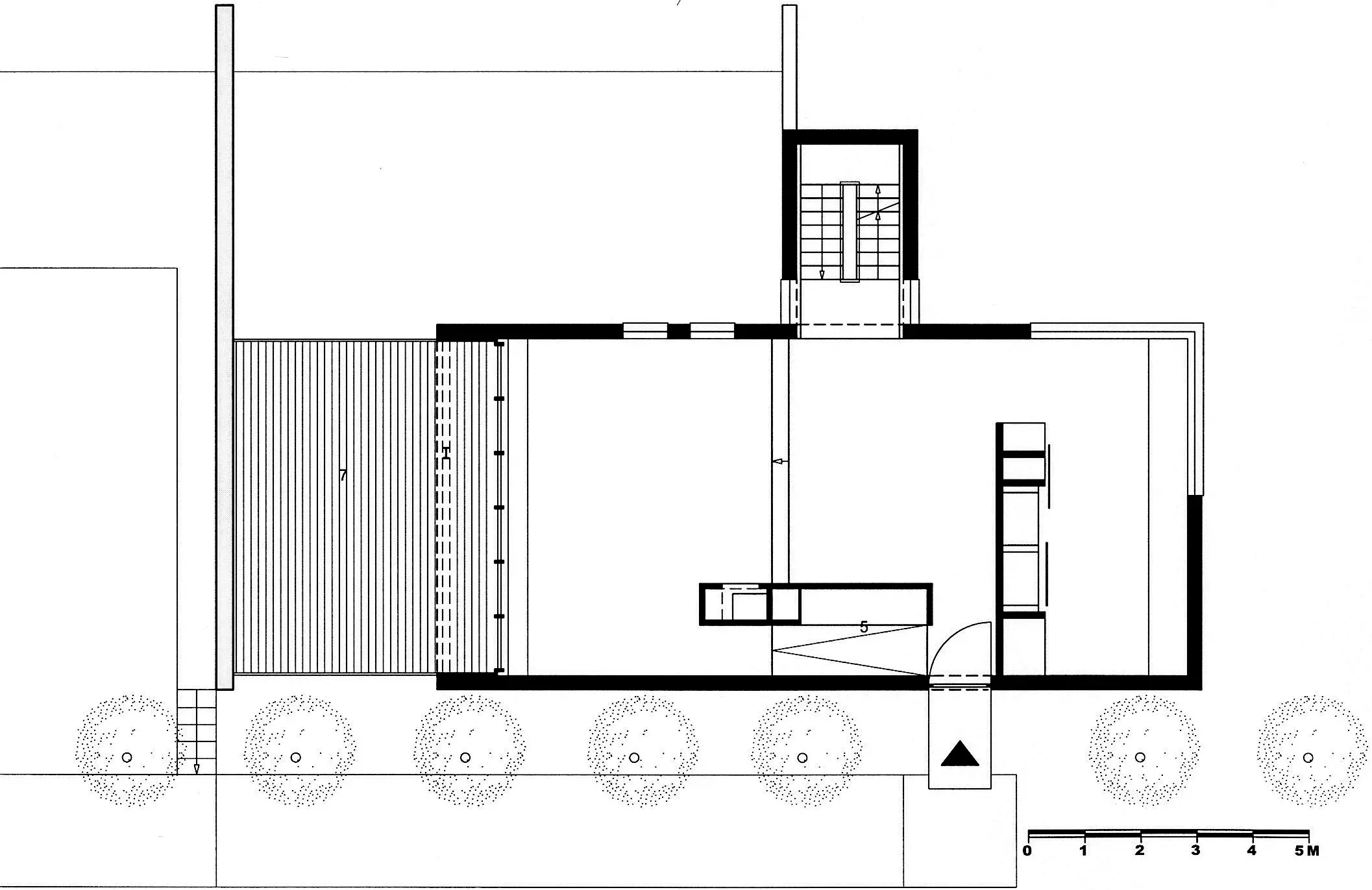
La grand-route très fréquentée et abondamment boisée a été déterminante lors de la conception de ce projet d'habitation. Afin de maintenir l'ensemble des plantations existantes, les architectes privilégient une implantation en retrait du terrain paysager de 120 a dont disposent les propriétaires et l'érigent sur vingt-trois pieux battus. En complément de la végétation, un mur-écran protège la villa et sa terrasse des regards et des nuisances sonores. Le volume principal superpose ses deux niveaux à 80 cm du sol naturel, et couvre le garage et les locaux techniques en demi-sous-sol. Un lierre rampant renforce la sensation de lévitation et donne plus d'ampleur à la masse végétale. La cage d'escalier, en retrait de la façade est, libère de grands espaces traversants et autorise aux pièces de vie de larges ouvertures vers le jardin.

Béatrice Renard

Sources
Archives de Baneton-Garrino Architectes.