Sanctuaires Notre-Dame de Beauraing
Jalon XX
Couvent ou apparenté
1964 - 1968
1964 - 1968
1964 - 1968
Réalisé
Conçu par Roger Bastin à la demande du rectorat des Sanctuaires Notre-Dame de Beauraing qui souhaitait accueillir les nombreux pèlerins affluant lors des célébrations liées aux apparitions mariales, le complexe s'organise autour d'une grande esplanade ouverte sur la rue de l'Aubépine et bordée, à l'est, par l'enclos des apparitions circonscrit par les abris en béton conçus par Bastin comme des dalles-champignons, et l'ancienne École des sœurs de la charité chrétienne, et, à l'ouest, par le mur de moellons qui la sépare de la résidence canoniale.
Au centre de cette esplanade trône la chapelle votive en moellons calcaires, édifiée par l'architecte Michel Claes dans les années 1950 dans un style néoroman empreint de symbolique.
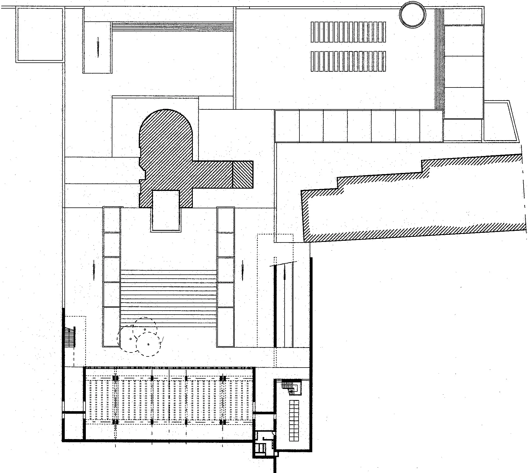
L'implantation par Bastin des deux églises principales en fond de parcelle tire parti du relief abrupt de la colline qui marque la limite entre la plaine de la Famenne et les plateaux ardennais.
Engoncée dans la roche, l'église du Rosaire est un espace large et peu profond, de plan rectangulaire, qui fait office de grande crypte pour l'église supérieure qui la surplombe. Celle-ci, conçue comme une vaste halle (2 500 m²) à laquelle on accède latéralement par des rampes et escaliers extérieurs, peut contenir plusieurs milliers de personnes. Sa toiture est composée de cinq auvents de 40 m de long sur 10 m de large, constitués par une poutre-caisson supportée par des deux paires de colonnes jumelles écartées de 24 m, entre lesquelles filtre une lumière diffuse. Elle est rendue indépendante du sol et des parois latérales par un bandeau de vitrage sans châssis, dont l'effet recherché est celui de l'impression d'un espace extérieur couvert.
Le matériau « béton », omniprésent pour les structures, est travaillé en association avec la pierre calcaire locale, pour les parois et murets, et les plaques de pierre polie, pour les façades. Le sanctuaire est l'une des œuvres les plus exceptionnelles de Roger Bastin, et plus largement, de l'architecture moderne en Wallonie.
Jean-François Rondeaux
| Sources |
|---|
| Fonds Roger Bastin, Bruxelles, Archives d'architectes UCLouvain-BAIU. |
| Van Oost Guy, «Les programmes publics et communautaires» dans Roger Bastin architecte, 1913-1986, Sprimont : Mardaga, 2001, p.87-112. |
| Ministère de la Région wallonne, Namur, arrondissement de Dinant. Vol. 22.1., Liège : Mardaga, 1996, p.123. |