Maison Frix-Clément

Habitation unifamiliale

1937 1937
Réalisé

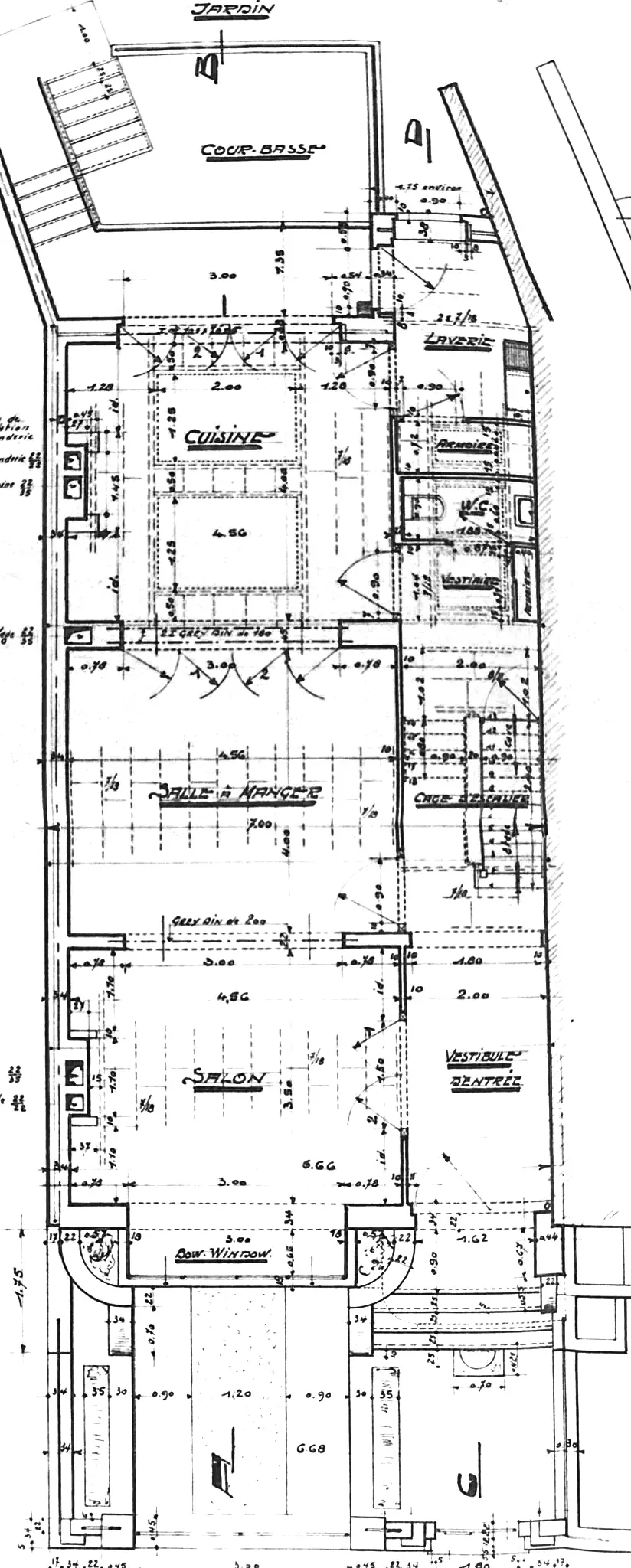
Située aux limites des anciennes fortifications de Vauban, cette maison emprunte quelques caractéristiques aux différents courants de l'entre-deux-guerres : le modernisme dans la rigueur de mise en œuvre et la volumétrie générale, l'Art déco dans les figures géométriques et la finesse des ornementations, le style paquebot dans les formes arrondies et les lignes verticales. Son seuil fait l'objet d'une attention particulière, étant mis en valeur par un balcon surplombant et des articulations délicates. En façade, la brique se décline en deux teintes, au travers d'un appareillage le plus simple. En dedans, les pièces respectent la traditionnelle distribution en enfilade, tout en s'ouvrant largement les unes sur les autres. Juste adjacente, la façade du n° 16 présente une composition sensiblement similaire et un même soin dans le travail des ferronneries.

Sources
Archives communales d'Ath.