Maison Deghilage

Habitation unifamiliale

Réalisé

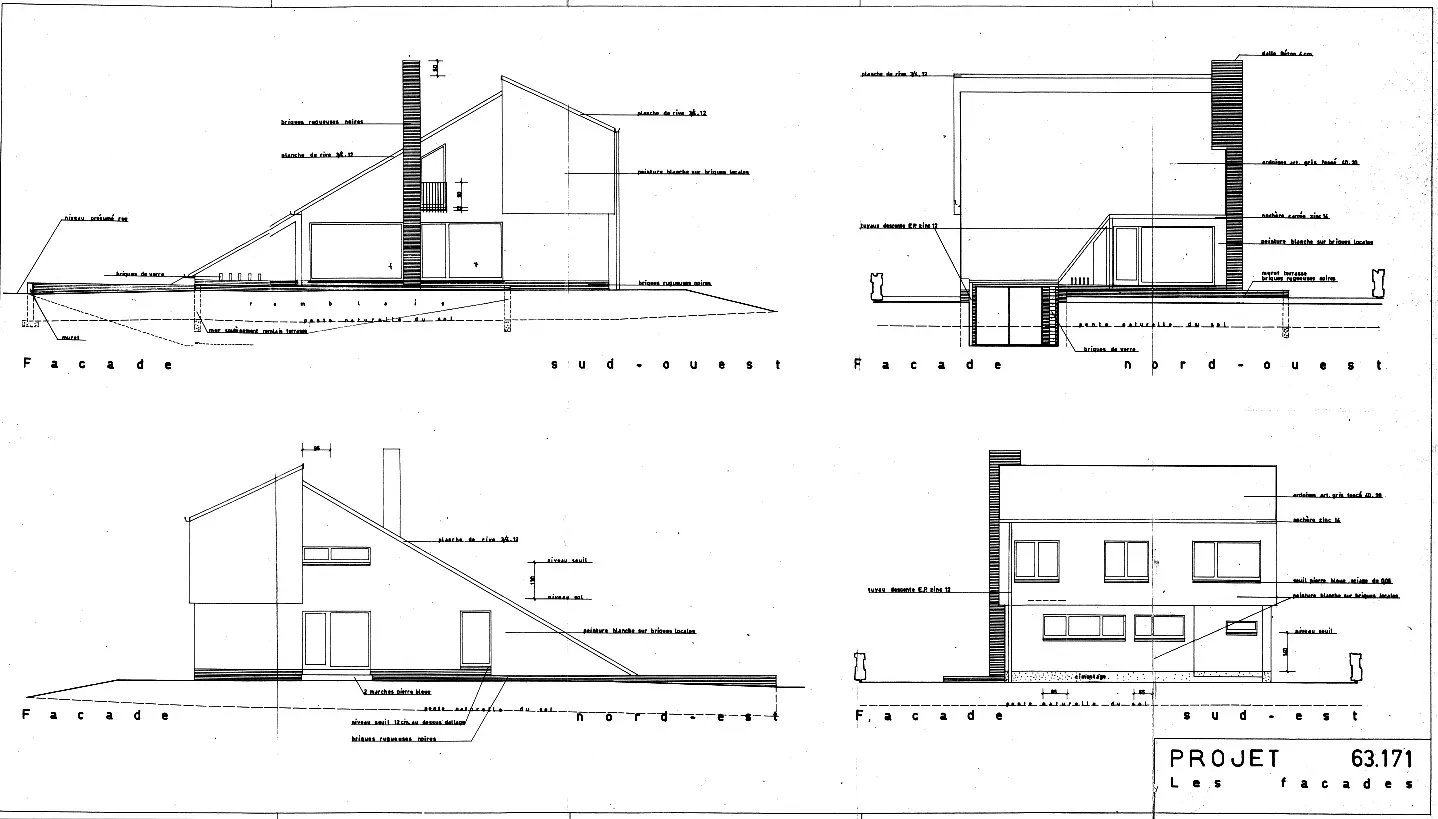
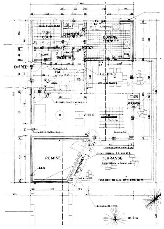
Construite il y a plus de cinquante ans, la maison conserve son ambiance originelle (grandes surfaces immaculées, poêle en fonte ou lambris en bois de pin). Elle est l'œuvre de l'architecte Deghilage, membre d'un groupe montois dont faisait partie Jacques Dupuis. On y retrouve l'esprit fonctionnaliste de l'époque, teinté d'une influence organique. Le plan s'appuie sur quelques lignes fortes, encourageant le mouvement et la fluidité. Le séjour (prolongé par la salle à manger) constitue le cœur de la maison, en même temps qu'il se projette vers l'environnement extérieur. Il bénéficie d'une superficie généreuse, quand les pièces techniques et individuelles sont plutôt exiguës. Il est encore mis en valeur par sa très grande hauteur sous plafond, par la présence de la mezzanine et par la lumière naturelle abondant des baies vitrées. Axe majeur du projet, l'inclinaison de la toiture structure l'organisation de la coupe et contribue à la singularité des espaces.

Sources
Archives privées.