Maison de l'Emploi (anciennement Silos de la Dendre)
Autres bâtiments d'éducation Bureaux
1901
1901
1901
1921
1921
1947
1947
1956
1956
1999 - 2002
1999 - 2002
1999 - 2002
Réalisé
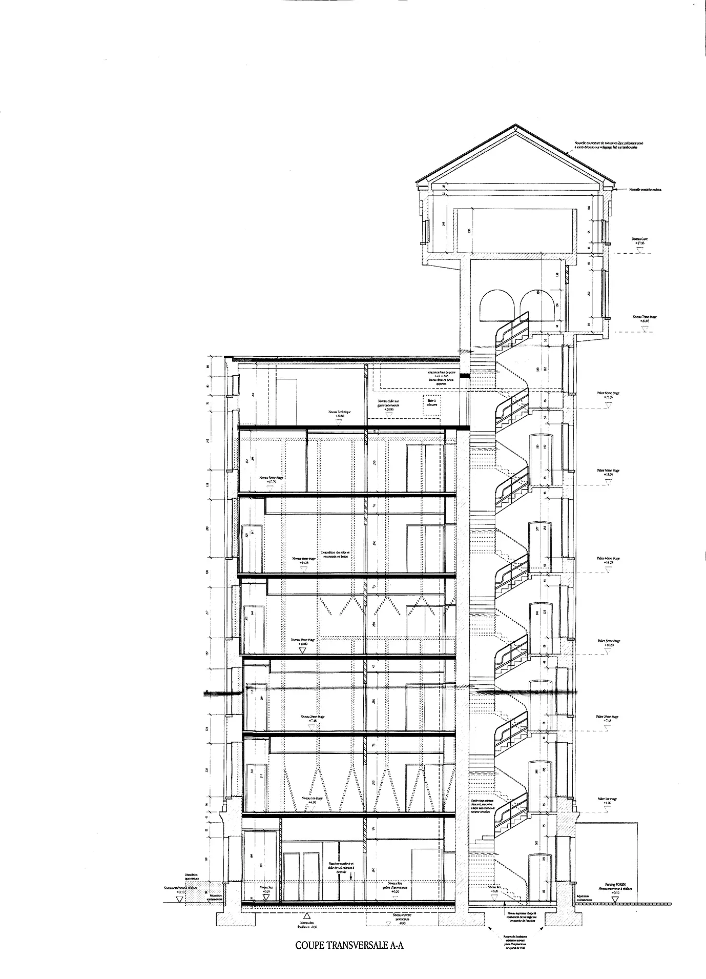
Attesté dès 1363-1364, le moulin de la Porte ou des Estanques est construit sur la deuxième enceinte médiévale d'Ath. Au début du XXe siècle, le meunier C. Fontaine fait appel à deux architectes et ingénieurs gantois pour construire une minoterie industrielle à côté de l'ancien moulin, entre les deux bras de la Dendre orientale. Cet édifice, qui rappelle les grandes minoteries de Flandre ou de Bruxelles, propose une écriture d'inspiration néomédiévale avec ses tours carrées, ses faux mâchicoulis et ses ouvertures en plein cintre. En ruine en 1918, il est reconstruit en 1921 par les minoteries de la Dendre, sur les plans des ingénieurs de la société internationale Zublin & Cie. Incendié en 1946, il est réhabilité par l'architecte bruxellois M. Van Eyck. Repris par les Silos de la Dendre en 1956, le moulin assure des fonctions d'entrepôt et de stockage des productions agricoles de la région jusqu'à sa reprise par le Forem en 1993. Sa dernière restauration conserve les caractères principaux de l'édifice, dominé par une tour néomédiévale avec arcatures lombardes et ouvertures en plein cintre. L'ancien silo est démoli et les constructions adventices éliminées. La minoterie est réduite à quatre travées sous le château d'eau, certaines parties occupées par des silos ne pouvant être réhabilitées. La conservation de la cheminée affirme le caractère industriel des bâtiments. L'aération du site a permis la construction de logements sociaux et le passage d'une drève sur l'ancien tracé de la Dendre orientale.
Jean-Pierre Ducastelle
| Sources |
|---|
| Van Malderen Luc & Puttemans Pierre, Architectures industrielles en Belgique et ailleurs, Bruxelles : Labor, 1992, p.50-51. |
| Le Patrimoine industriel de Wallonie, Liège : Editions du Perron, 1994, p.79-82. |
| Ducastelle Jean-Pierre, «Le Moulin des Estanques (Silos de la Dendre)» dans Cercle Royal dHistoire et dArchéologie dAth et de la région, Office de tourisme dAth, Le patrimoine du pays dAth : un deuxième jalon (1976-2005), Ath : Cercle royal dhistoire et darchéologie dAth, 2006, p.166-168. |