Brasserie Wincqz

Habitat groupé

Réalisé

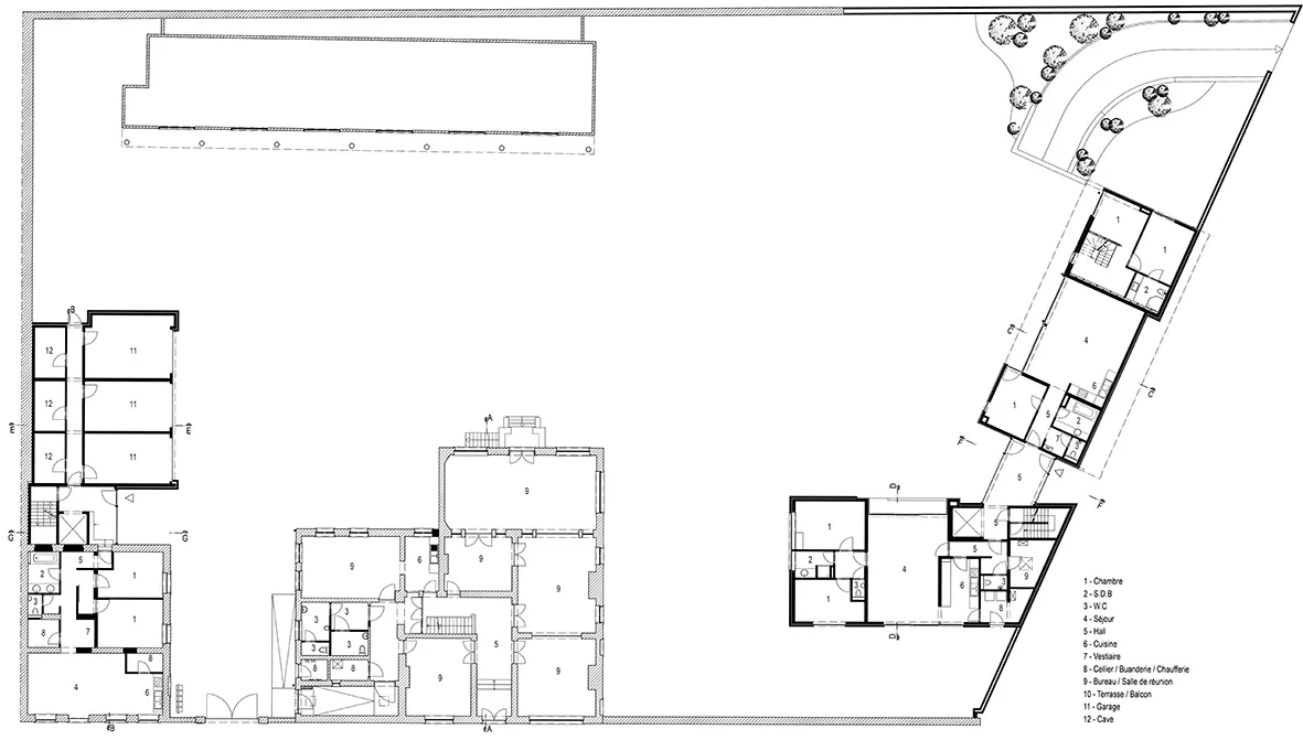
À l'angle du boulevard ceinturant le centre historique d'Ath et de la chaussée ralliant Bruxelles, la brasserie Wincqz occupe une position stratégique. Abandonnée, puis cédée à un promoteur immobilier, elle fera l'objet d'une transformation en logement collectif plus d'un siècle après son édification. Cette conversion répond à une volonté de densification, que l'architecte entend mener dans le respect du patrimoine existant et de sa relation au contexte. D'où la démarcation évidente entre l'existant et le neuf, par le biais d'une écriture résolument contemporaine. Les deux édifices patrimoniaux – maison du contremaître et maison directoriale (1897) de style éclectique – sont restaurés et agrandis. Une construction neuve s'ajoute le long du boulevard du Parc, en retrait du mur de clôture existant. Ce mur et, avec lui, l'aspect majoritairement fermé du rez-de-chaussée marquent l'unité du site ; une unité toutefois contrebalancée par l'articulation relativement complexe des volumes et des matériaux.

Charlotte Lheureux

Sources
Archives de In situ.