Atelier d'architecture et bureaux

Bureaux Habitation unifamiliale

2000 - 2001 2000 - 2001
Réalisé

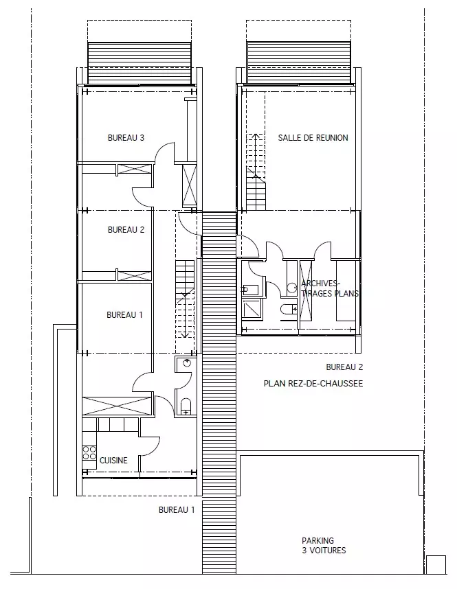
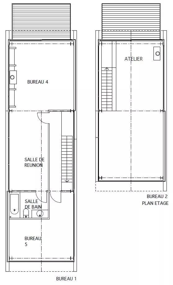
Bâti à flanc de versant, le bâtiment qui abrite des bureaux et l'atelier de l'architecte reprend des traits caractéristiques des villas 'cottage' de son environnement. En témoignent le caractère détaché du bâtiment sur pilotis, son retrait de l'alignement, sa composition en plusieurs volumes ou encore les lignes faîtières perpendiculaires qui dessinent un pignon triangulaire à rue. Source de polémique lors de l'octroi du permis, la modernité est affirmée par les abondantes parties vitrées des façades avant et arrière - donnant vue sur la vallée - ou l'empilement des dalles de bardage de béton cellulaire laissés bruts pour les murs latéraux, résultats d'une expérimentation dans la rationalisation des moyens. Le bâtiment évoque d'autres réalisations de l'architecte, dont les maisons Fagot-Levaque, Schumacher, Legrand. Les bureaux sont conçus pour être facilement adaptables en logements.

Sources
Atelier d'architecture Pierre Monseu (PMAA), «Plans Atelier d'Architecture Pierre Monseu».