Écluse et station de pompage du canal Nimy-Blaton-Péronnes
Stations de pompage Ecluses
1960
1960
Réalisé
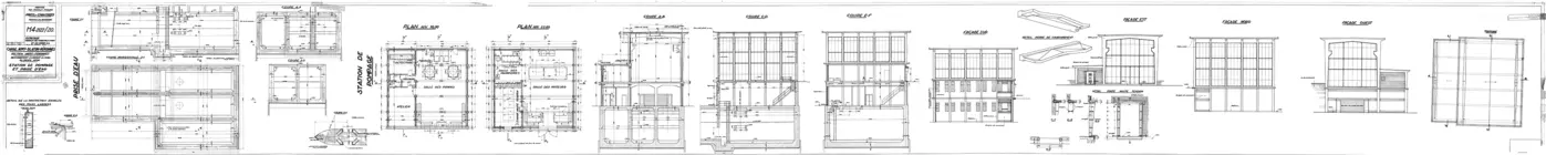
Ici, l'architecture coïncide avec l'ingénierie. Tout est structure, ramené à l'essentiel avec la volonté explicite d'exprimer l'efficacité. Ainsi, la station de pompage s'articule à partir de fins portiques en béton armé dont la forme exprime de manière littérale les sollicitations auquel l'ouvrage est soumis. Point de façade travaillée, celle-ci n'est que la transposition de la coupe, accompagnée de vitrages, faisant office de remplissage entre les éléments structurels. Quant à la cage vitrée jouxtant l'écluse, elle permet de suivre du regard l'élégant mouvement de l'escalier hélicoïdal.
Bernard Wittevrongel
| Sources |
|---|
| Archives de la Direction des Voies Hydrauliques de Wallonie. |