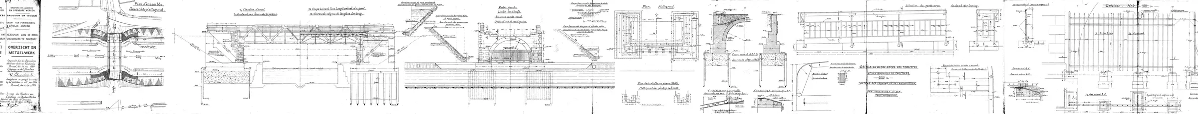
Pont de Morlies

Ponts et passerelles

Réalisé

Également appelé Pont royal, cet ouvrage permet le franchissement de l'ancien canal Pommerœul-Antoing, inauguré en 1826. Sa structure est composée de deux poutres maîtresses en treillis de type Warren de 19,6 m de portée. Les barres verticales ne font pas partie de la structure de la poutre : elles servent à suspendre les poutres transversales du tablier aux poutres maîtresses. Les barres de la poutre en treillis, profilé, reconstitué et riveté, sont mises en liaison par des goussets. Les assemblages sont également réalisés au moyen de rivets. La massivité de l'ouvrage s'explique probablement par le fait qu'il devait permettre le passage d'une ligne de tram. Le platelage du tablier est composé de tôles en forme de coupoles inversées recouvertes de sable et de pavés. Cet ouvrage a été réalisé sous la direction de l'ingénieur Paul Christophe (1870-1957), à l'époque directeur du Service spécial d'Études d'ouvrages d'art du ministère des Travaux publics.

Bernard Espion et Michel Provost

Sources
Archives du SPW-DGO1.
Hellebois Armande & Espion Bernard, «Christophe Paul» dans Nouvelle biographie nationale, n° 12, Bruxelles : Académie royale de Belgique, 2014, p.60-62.