Moulin de l'ancienne abbaye de la Paix-Dieu
Bureaux
2006 - 2013
2006 - 2013
2006 - 2013
2006 - 2013
2006 - 2013
Réalisé
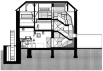
Occupant une position stratégique à l'entrée du site, le moulin a été construit en 1665, abritant également l'habitation du meunier ; abandonné vers 1950, il s'est progressivement détérioré, jusqu'à la ruine. Lors de la restauration, l'aspect originel a été conservé, liant les interventions à l'apport de lumière – dans un bâtiment dont les ouvertures initiales sont étroites pour des raisons purement fonctionnelles – au moyen d'une nouvelle circulation verticale.
Tous les locaux techniques sont concentrés dans l'appentis qui est un prolongement enfoui dans le talus, recouvert d'une nappe végétale en prolongement de la prairie fleurie du talus.
Au rez-de-chaussée, le bâtiment abrite aujourd'hui la Maison du tourisme Hesbaye-Meuse et, à l'étage, les bureaux du secrétariat des Journées du patrimoine en Wallonie.
Freddy Joris
| Sources |
|---|
| Péters Delphine & Tenuta Andréa & Logist Karel, Tenuta-Péters, architectes + Karel Logist, écrivain, Liège, Fourre-Tout éditions, Bruxelles, Civa, 2009. |